CHIERI, VIABILITÀ. INIZIATI I LAVORI DEL PARCHEGGIO DELLA STAZIONE DI PESSIONE

L’assessore Paolo RAINATO: “Un investimento di 180mila e un ulteriore importante intervento sulla frazione di Pessione”
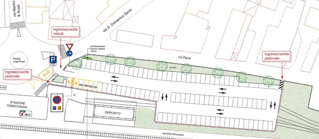
«Sono iniziati in questi giorni i lavori di realizzazione del parcheggio nell’ex area di interscambio della stazione di Pessione. Dopo una lunga interlocuzione, Ferrovie dello Stato ha dato l’area in concessione d’uso al Comune di Chieri, e qui verranno realizzati 96 posti auto liberi, due posti auto riservati a persone con disabilità e alcuni stalli per le bici. Il cantiere durerà tre mesi, e l’investimento per quest’opera è di 180mila euro»: lo annuncia l’assessore alla Viabilità e ai rapporti con le Frazioni Paolo RAINATO. Verrà realizzata l’illuminazione, attualmente mancante, rifatto l’allacciamento fognario verso via Piave e ripristinato il sistema di raccolta acqua, infine è prevista la piantumazione di alcuni alberi sul cordolo che divide il parcheggio da via Piave. «Un altro importante tassello che va ad aggiungersi agli interventi che interessano alla frazione di Pessione. Il nuovo parcheggio servirà a decongestionare il traffico in quella zona, e sarà funzionale ai tanti utenti che prendono il treno verso Torino o verso Asti, oltre che agli esercizi commerciali e ai loro clienti.»



