Chieri, San Filippo e le sedi delle associazioni. Gli Alpini: “Ecco come potremmo restare (provvisoriamente) qui…”
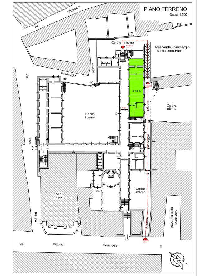
Mentre si avvicina la scadenza del 30 settembre comunicata dal Comune alle Associazioni che hanno la loro sede a Palazzo San Filippo per lasciare liberi i locali, Vittorio Rusco a nome della sezione chierese dell’Associazione Alpini ha inviato una lettera al sindaco, alla giunta e ai consiglieri comunali in cui avanza, sentito un tecnico della sicurezza, una proposta di soluzione provvisoria. Scrive Rusco: “La sede ANA da sempre è il luogo in cui si incontrano coloro che hanno appartenuto o appartengono alle truppe alpine , i figli degli ex combattenti , i sostenitori e tutti coloro che sentono l’importanza di mantenere vive e tramandare le tradizioni degli Alpini, i loro vincoli di fratellanza in un codice di comportamento che da sempre li contraddistingue. La sede ANA non è solamente un locale in cui ci si incontra, è un ambiente unico in cui coesistono la storia e la memoria, è un museo attivo in cui ritrovarsi, un caffè letterario in cui immagini, raccolte letterarie a tema, simboli e cimeli di guerra si ricompongono ridando vita al passato vissuto da ogni Alpino. La ricca biblioteca, le teche espositive, l’aggregazione degli spazi , gli stendardi esposti, le bandiere a soffitto e molto altro si fondono in un unico simbolo in cui ogni Alpino si ritrova e si identifica. E’ impensabile racchiudere tutto questo, anche temporaneamente, in una scatola per riaprirla chissà quando, chissà dove e chissà come; gli Alpini sono legati a filo doppio con passato trascorso e con i loro simboli, un simile distacco, anche temporaneo, sarebbe insopportabile. Riteniamo pertanto opportuno proporre alla Civica Amministrazione, una soluzione temporanea ma risolutiva delle incongruenze rilevate per la presenza della nostra associazione all’interno del Complesso che ospita anche un istituto scolastico ed uno spazio museale. Riteniamo che la nostra sede possa continuare ad occupare gli spazi a suo tempo assegnatici, se opportunamente separati dal resto del Complesso, annullando percorsi, accessi comuni ed eventuali altre interferenze dovute alle opere di adeguamento antincendio e messa in sicurezza, se necessarie. La separazione fisica della sede ANA dal resto del Complesso consente di mantenere attiva la sede A.N.A.nelle sue funzioni al servizio degli Alpini, in attesa di definizione di nuovi locali idonei da parte della Civica Amministrazione.”
Rusco passa poi alla proposta. “Si propone di separare fisicamente la sede A.N.A. dal resto del complesso San Filippo. La realizzazione di un muro con caratteristiche REI 120 nel corridoio al piano terreno, a tutt’altezza, oltre la porta che consente l’accesso al cortile, separa la sede A.N.A. dal resto del complesso San Filippo, una compartimentazione a norma di VV.F. che stacca fisicamente lo spazio assegnato agli Alpini da ogni altra attività svolta al piano terreno. Il nuovo ingresso è previsto in via Vittorio Emanuele 65; percorrendo un passaggio privato ad uso pubblico si raggiunge il cortile in fondo, da cui si accede al cortile interno in cui è situato l’ingresso alternativo ai locali del piano terreno che ospitano la sede A.N.A. Un percorso agevole che non interferisce in alcun modo col resto del complesso San Filippo. Nella nuova muratura di separazione, realizzata nel corridoio, è inserita una porta con le stesse caratteristiche REI della muratura che la contiene; questo per consentire un comodo accesso agli impianti situati in questa porzione di edificio da parte della Civica Amministrazione e non compromettere la funzionalità del Complesso. Qualora l’Amministrazione ritenesse necessario mantenere l’accessibilità all’intero corridoio, utilizzando l’uscita su cortile, la nuova porta REI ne consentirebbe la fruizione totale degli spazi. Naturalmente l’accesso alla restante parte del corridoio al piano terreno è interdetta agli Alpini. La descrizione delle opere da eseguire e la quantificazione dei costi verrà indicata in seguito, ad accettazione della presente proposta. Certi che la soluzione proposta possa risolvere in forma temporanea e/o definitiva le incongruenze rilevate dalla Civica Amministrazione, per la presenza della nostra associazione all’interno del Complesso, in attesa di riscontro, porgiamo i più Cordiali Saluti.”


